Argus Building Supply 808-933-9441
Argus Building Supply                          808-933-9441

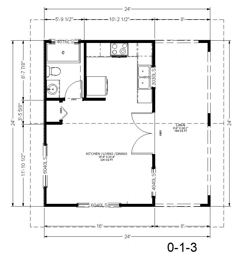
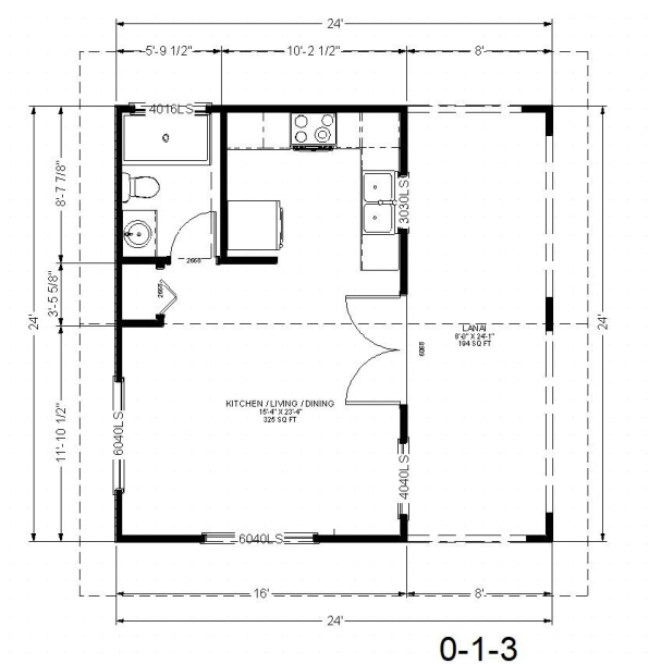
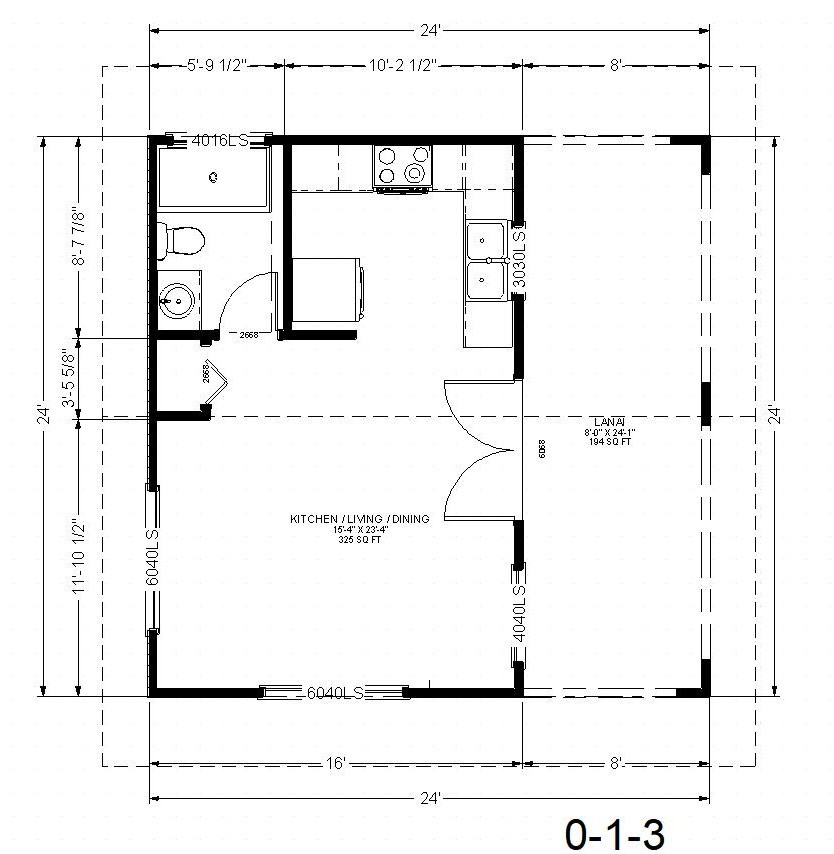
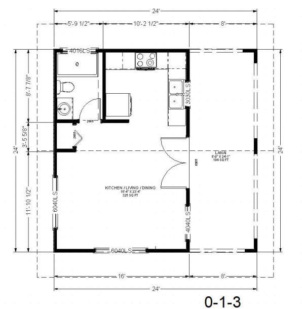
0-1-3 Studio House Package

013.pdf
Adobe Acrobat document [68.7 KB]
Click for the BBB Business Review of this Building Materials in Hilo HI

Contact us

Business Hours

Mon.-Fri.      7:30 to 4:30

Saturday and Sunday.            CLOSED for family time

Need a Material Estimate ?

Drop by our location or contact us  by email. We look forward to your visit.

To download the latest Adobe  Reader use this link.

Print | Sitemap
© Argus Building Supply

10 Makaala St Hilo, HI 96720
808-933-9441

This website was created using IONOS MyWebsite