Argus Building Supply 808-933-9441
Argus Building Supply                          808-933-9441

Four-Bedroom House Packages in Hilo, HI

4-3-1

This 4 bedroom 3 bath home is ideal for a growing family of for entertaining overnight guests. The spacious living / dining/ kitchen area provides ample room for everyone. The master bedroom suite features a large walk in closet and bathroom. Window placement leaves lots of wall space. The back bedroom on the other end has its own bathroom or that area could be used for other purposes.

4-3-2

This plan shows the front entry covered by a lanai that could be any size you want. It also features a vaulted ceiling in the kitchen/ living room

4-3-3

This plan shows the 4-3-1 with a lanai attached to the back of the house. In one version of this house the lanai was enclosed and screened to make a wonderful play room/ gathering area.

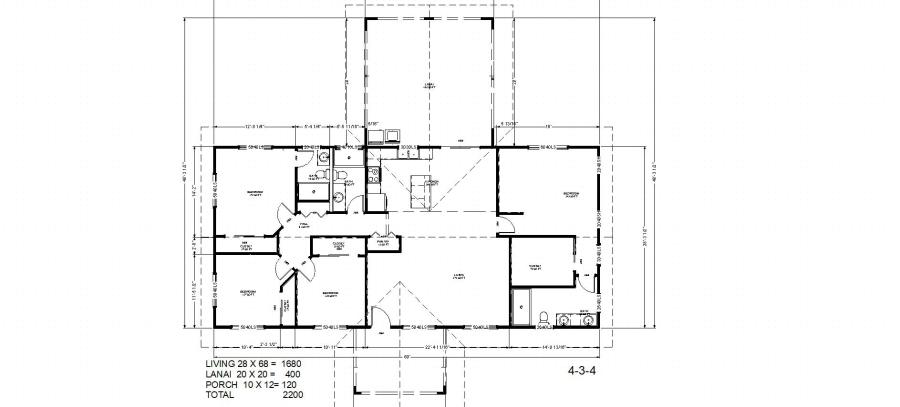
4-3-4 

This plan adds both the porch and lanai or carport to the 4-3-1

Click for the BBB Business Review of this Building Materials in Hilo HI

Contact us

Business Hours

Mon.-Fri.      7:30 to 4:30

Saturday and Sunday.            CLOSED for family time

Need a Material Estimate ?

Drop by our location or contact us  by email. We look forward to your visit.

To download the latest Adobe  Reader use this link.

Print | Sitemap
© Argus Building Supply

10 Makaala St Hilo, HI 96720
808-933-9441

This website was created using IONOS MyWebsite